Kunde: wph Wohnbau und Projektentwicklung Hamburg GmbH
Kategorie: Wohnen
Wohnen am Elbhang 2010
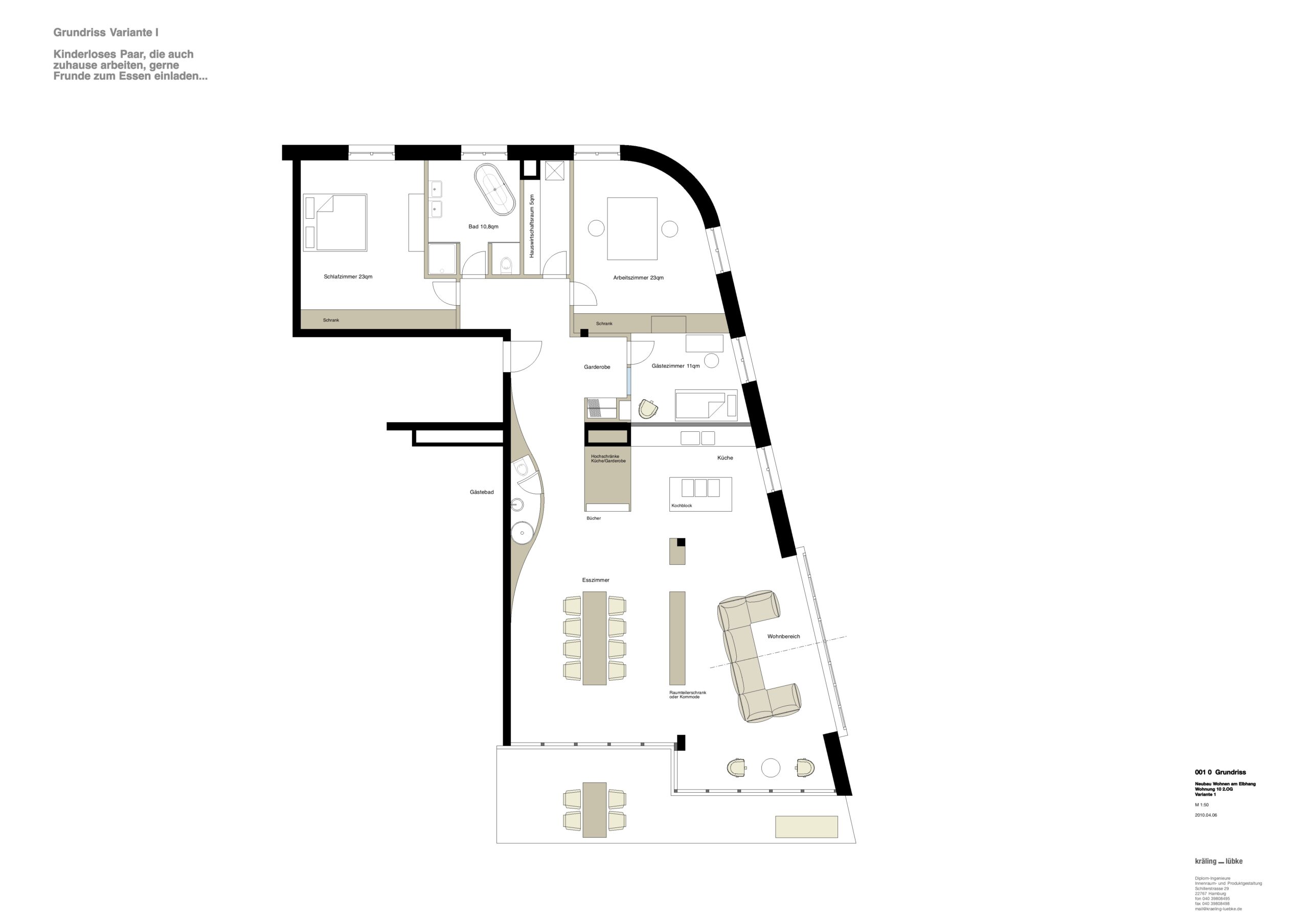
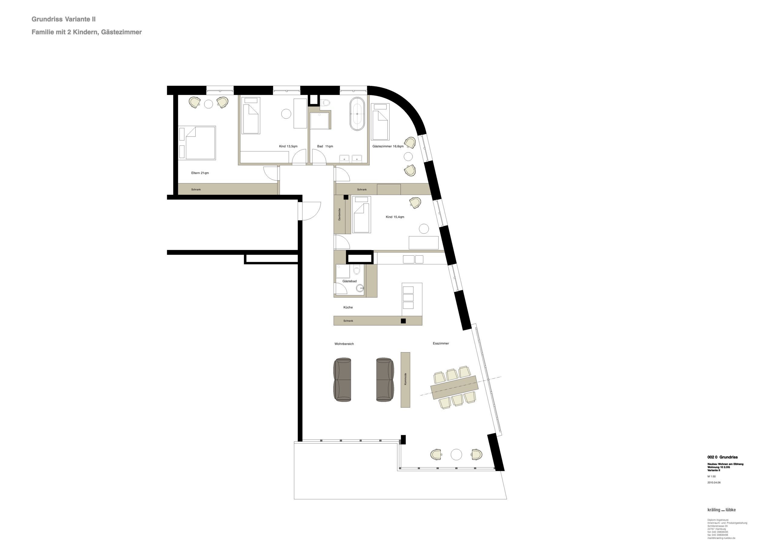
Für das Projekt „Wohnen am Elbhang“ werden unterschiedliche Grundriss- und Möblierungsvorschläge erarbeitet, um die Möglichkeiten der Raumaufteilung zu veranschaulichen. Einzelne Raummodule wie Küche, Wohnraum, Schlafzimmer, Badezimmer usw. sind in drei Wohnungstypen unterschiedlich kombiniert und zeigen die Möglichkeiten einer individuellen Grundrissgestaltung auf.



